Åens Hus

Services
Architecture, programming, detailed design
Location
Aarhus, Denmark
Year
2019
Client
PensionDanmark, Nordstern
Status
Ongoing
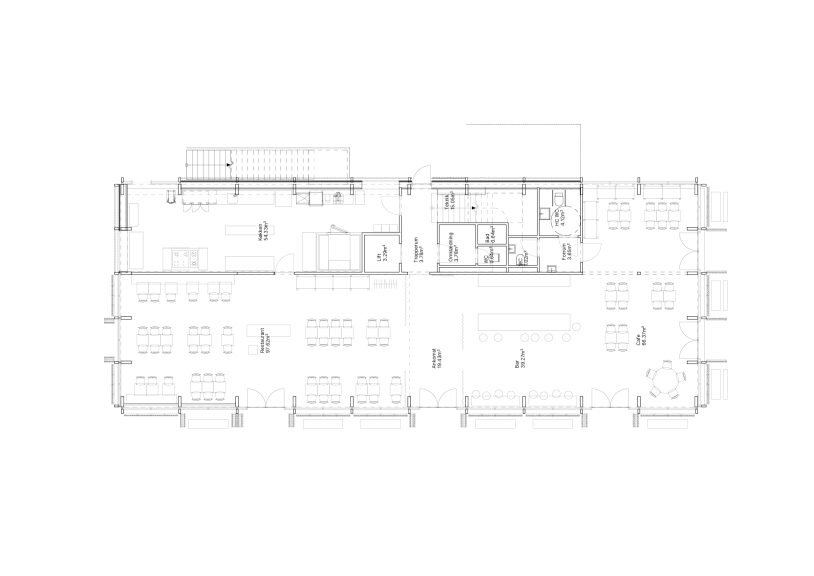
Areal
670 m2
Collaborators
Artelia (MOE), Aaen Engineering, Next-Food

Åens Hus is a sustainable community house in Trælasten, Aarhus.

The building is a modern take on the old timber barns that used to be at the site. It builds directly on this heritage by using reclaimed construction wood and façade cladding from the dismantled buildings. At the same time, it offers itself as an iconic meeting point along the river, from where the local terroir can be explored. The terroir is invited inside, as Åens Hus features an integrated vertical garden, for cultivating greens and educational purposes open for the public.

Other than a restaurant for the locals and visitors, the project houses community workshop, spaces for local associations and a range of community functions. Åens Hus becomes a signature building for Trælasten’s ambitions to create strong local communities and promote sustainability in everyday life.

The building’s façade features large shutters, that can open op the entire volume for seamless integration with the outside. These are inspired by the industrial barns across Denmark, that used to control passive ventilation for drying building materials.

Furthermore, BRIQ has developed the area’s urban life and retail strategy, read about the strategy at this link